| Ausschreibungstext Typ E8 | ||||||||
| Mobile Trennwand | ||||||||
| Qualitätsmaßstab: Fabrikat „Günther“ Typ „E 8“ | ||||||||
| zu beziehen über: | ||||||||
|
||||||||
| - oder gleichwertig | ||||||||
| Leistungsbeschreibung: | ||||||||
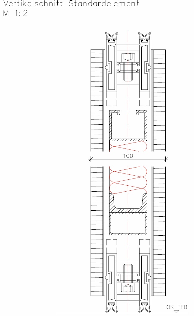
| Mobile Trennwand aus Einzelelementen, die im aufgebauten Zustand den Eindruck einer festen, ebenen Wand ergeben. Keine sichtbaren Profile, vorstehende Schrauben oder Metallteile. 84 mm stark. Bedienung manuell. Ohne jegliche Bodenführung in einem wartungsfreien, geräuscharm laufenden Deckenlaufschienen- bzw. Rollensystem hängend. Schalldämmung nach DIN EN 20 140-3. TÜV-Prüfung nach DIN 31000. | ||||||||
| Rahmenkonstruktion: | ||||||||
|
Für langjährige Nutzung ausgelegte, verwindungssteife Stahlrahmenkonstruktion aus ringsum geschlossen verschweißtem Rechteckrohr für höchste Stabilität und Standfestigkeit auch bei Seitendruck. |
||||||||
| Beplankung: | ||||||||
|
Qualitätsspanplatten nach DIN 68763, Emissionsklasse E1, akustisch freischwingend aufgebracht. Oberfläche nach Vorgabe des Auftraggebers. Für Wartungszwecke, Reparaturen und Behebung von Oberflächenschäden müssen die Beplankungen im hängenden Zustand durch einfaches Aus- und Einhängen - ohne Elementausbau, Zerlegung am Bau oder kompletten Elementaustausch - einzeln austauschbar sein. |
||||||||
| Stirnseitige Elementverbindung: | ||||||||
|
Form- und kraftschlüssige seitliche Verbindung der Elemente durch im geschlossenen Zustand nicht sichtbare eloxierte Aluminium-Stirnprofile mit integrierten Mehrfach-Dichtlippen und Magnetband im NutFeder-System. Eintauchtiefe 20 mm. Zum Schutz vor Vandalismus keine offen liegenden zusätzlichen Dichtungen an den Elementkanten. |
||||||||
| Wandanschlüsse: | ||||||||
|
Oberfläche und Stärke wie Trennwand. Ohne Vor- oder Rücksprung. Breite max. 60 mm. |
||||||||
| Höhenjustierung der Elemente: | ||||||||
| Höhenverstellmechanik, bedienbar ohne Öffnen von Decke, Laufschiene oder Element. | ||||||||
| Druckbalken: | ||||||||
| Abdichtung zur Deckenschiene und zum Boden durch bis zu 35 mm ausfahrbare, druckausgleichende federgelagerte Kammerdruckbalken aus Aluminium natur oder dunkel eloxiert. Manuelle, wartungsfreie Bedienung über stirnseitige Handkurbel, die ein Doppelscherengetriebe bewegt. Anpressdruck 2000 N mit statischem Nachweis für eine standfeste und gegen Seitendruck sichere Wand. | ||||||||
| Teleskopelemente: | ||||||||
| Mit 3-seitigem Kammerdruckbalken. Seitlicher Kammerdruckbalken in gleicher Oberfläche wie die Trennwand, innen liegend und eingefahren flächenbündig. Keine aufdoppelnden Klappteile. Die Bewegung aller Druckbalken erfolgt von der Fläche aus zentral mit nur einer Kurbelbedienung. | ||||||||
| Deckenlaufschienen- bzw. Rollensystem: | ||||||||
| Deckenlaufschiene aus Aluminium, für reduziertes Design in der Ansicht nur 80 mm breit. Abzweigungen, Kreuzungen und Weichen sind verschweißt. Keine Störung der Optik durch unnötige Laufschienen-Stöße. Elementaufhängung an wartungsfreien kugelgelagerten Spezial-Doppelrollen-Laufwagen, welche einen absolut leichtgängigen und leisen Lauf garantieren und das Absacken der Elemente beim Durchfahren von Abzweigungen, Kreuzungen oder Weichen wirkungsvoll verhindern. | ||||||||
| Abhängung: | ||||||||
| Zum Ausgleich eventueller Deckendurchbiegungen ist die Abhängung mittels einer verstellbaren, korrosionsgeschützten Konstruktion an statisch belastbare Bauwerksteile zu erbringen. Keine starren, nicht verstellbaren Abhängekonstruktionen. | ||||||||
| Abschottung: | ||||||||
| Über der Laufschiene GK-Abschottung - bis Rw 45 dB in zweischaliger Ausführung - entsprechend der geforderten Trennwand-Schalldämmung. Fugendicht an Laufschiene und die angrenzenden Bauwerksteile angearbeitet. Hohlräume mit Dämmmaterial fest und rieselfrei verfüllt. Anschlüsse dauerelastisch verfugt. | ||||||||
| Schlupftürelemente: | ||||||||
| Verfahrbares Türelement mit zwei seitlich umlaufenden Portalrahmen mit integriertem umseitig verschweißtem Stahlrahmen und unterem Kammerdruckbalken mit 2000 N Anpressdruck. Durch hohen Anpressdruck ohne störende Bodenriegel verwendbar, damit das Element später auch an jeder beliebigen anderen Stelle der Trennwandanlage positioniert werden kann. 84 mm stark. Flächenbündig in Trennwand integriert. Türblatt mit automatisch ausfahrbarem Kammerdruckbalken unten sowie selbsttätiger Öffnungssicherung als Verletzungsschutz beim Verfahren. Türblatt mit 3-seitigem Doppelfalzprofil, zwei Dichtungen, Behörden-Einsteckschloß mit Edelstahl-Stulp für bauseitigen Profilzylinder, Turnhallenbeschlag Fabr. FSB Nr. 7950 in Aluminium EV1 eloxiert und mit kugelgelagerten 3-Lappen-Bändern am Portalrahmen angeschlagen. Je nach Anforderungen mit weiterem Zubehör wie z. B. integriertem Türschließer und/oder Panikbeschlägen lieferbar. | ||||||||
| Dem Angebot sind aussagefähige technische Unterlagen beizufügen. | ||||||||
| Montage: | ||||||||
| Nach DIN bzw. VOB. Die Montage beinhaltet die Lieferung frei Einbaustelle, Gerüststellung, Montagehilfen, Befestigungsmittel usw. sowie fix und fertige Montage durch werkseigene Monteure. Nachunternehmer sind im entsprechenden Formblatt bei Angebotsabgabe zu benennen. | ||||||||
| Montage durch werkseigene Monteure: .… Ja / .… Nein | ||||||||
| TÜV: | ||||||||
| TÜV-Prüfung nach DIN 31000 für eine betriebsfertige, eingebaute Trennwand. | ||||||||
| Prüfbericht nach DIN 31000 liegt Angebot bei: .... Ja / .… Nein | ||||||||
| DIN 4100 / VOB C, DIN 18 335: | ||||||||
| Deckenlaufschienensysteme sowie deren Abhängekonstruktionen sind gemäß DIN 4100 „einfache Stahlbauten“. Nach LBO, DIN 4100 und VOB C/DIN 18 335 ist ein kleiner Eignungsnachweis zu erbringen. Der Nachweis hat mit Angebotsabgabe zu erfolgen. | ||||||||
| Eignungsnachweis nach DIN 4100 liegt Angebot bei: .... Ja / …. Nein | ||||||||
| DIN EN ISO 9001: | ||||||||
| Der Hersteller der Trennwandanlage muss ein Qualitätsmanagementsystem nach DIN EN ISO 9001 eingeführt haben und den Nachweis mittels gültigen Prüfzeugnisses erbringen. | ||||||||
| Zertifikat DIN EN ISO 9001 liegt Angebot bei: .... Ja / …. Nein | ||||||||
| Zertifikat-Registrier-Nr.:…………………………gültig bis:……………………..………………….... | ||||||||
| Schalldämmung nach DIN 20140-3: | ||||||||
| Dem Angebot sind komplette Prüfzeugnisse entsprechend dem ausgeschriebenen Schalldämmwert beizuzulegen. Umgerechnete Prüfzeugnisse oder Prüfzeugnisse überholter Normen werden nicht anerkannt. | ||||||||
| Pos. 1 | ||||||||
| 1 Stück Trennwandanlage wie beschrieben | ||||||||
| Einbauort: | ||||||||
| Lichte Breite: | ||||||||
| Lichte Höhe: | ||||||||
| Elemente gesamt: | ||||||||
| Aufgeteilt in: | ||||||||
| LS-Befestigung: | ||||||||
| Elementaufhängung: 1-Punkt-Aufhängung / 2-Punkt-Aufhängung | ||||||||
| Abhängungshöhe | ||||||||
| Abschottungshöhe: | ||||||||
| Oberfläche: | ||||||||
| Druckbalken: | ||||||||
| Schalldämmung: Gewicht/m˛ | ||||||||
| Elementdicke: 84 mm | ||||||||
| Rahmen: Stahlrahmen, verschweißt | ||||||||
| - keine Verbundsysteme | ||||||||
| Laufschienensystem: Aluminium | ||||||||
| Parkbereich: | ||||||||
| Vom Bieter auszufüllen: | ||||||||
| Angebotenes Fabrikat Typ: ........................................................................... | ||||||||
| Hersteller: ........................................................................... | ||||||||
| Elementdicke: ........................................................................... | ||||||||
| Gewicht kg/m˛ :........................................................................... | ||||||||
| Verschweißter Stahlrahmen?: .… Ja / …. Nein | ||||||||
| Liefern und einbauen: 1 Stück ..........................€ ......................€ | ||||||||
| Text als PDF | Text als Word Doc. |

























